Trägergestell für modulares Fressgitter 4 m (ohne Gitterstäbe)
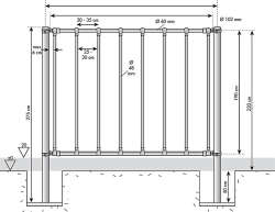
Ausführung: 2 Trägerrohre Ø 60,3 mm, 4 verstellbare Einschübe, mit Mittelstütze
Gewicht: 35 kg
? Nennlänge: 400 cm
? Montagelänge: 380 - 395 cm
Fressplätze: ca. 12
Produktinformation:

Pfosten und Montagezubehör separat bestellen
Angaben zur Produktsicherheit
Herstellerinformationen:
Patura KG
Mainblick 1
Bayern
Laudenbach, Deutschland, 63925
info@patura.com
https://www.patura.com/de_DE
| Produkteigenschaft |
Wert |
| Artikelgewicht: |
39,00 kg
|